Selenit 75 Strong
Ana Profiller
-
20 mm Dekoratif Çıta Profili -
24 mm Dekoratif Çıta Profili -
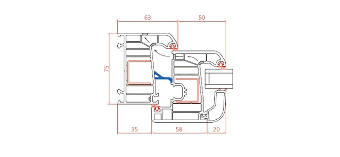
75 mm Kasa Profili -
Fransız Kasa Profili -
Hollanda Kasa Profili -
Pervazlı Kasa Profili -
Düz Kanat Profili -
Damlalıklı Kanat Profili -
Orta Kayıt Profili -
İçe Açılır Kilitli Kapı Profili -
Dışa Açılır Kilitli Kapı Profili -
Kanat Adaptör Profili -
Açılı Dönüş Adaptör Profili -
90 Dönüş Kutu Profili -
Açılı Dönüş Boru Profili -
Kasa Kaldırma Profili (40 mm) -
Kasa Kaldırma Profili (15 mm) -
Kasa Taban Montaj Profili -
Damlalıklı İçe Açılır Kilitli Kapı Profili -
135 Köşe Dönüş Profili -
Binili Kasa Profili -
Cephe Orta Kayıt Profili -
Dışa Açılır Kanat Profili -
Tek Cam Çıta Profili -
20 mm Çift Cam Çıta Profili -
24 mm Çift Cam Çıta Profili -
32 mm Çift Cam Çıta Profili -
İç Bükey 20 mm Çıta Profili -
İç Bükey 2 mm Çıta Profili -
24 mm Dekoratif Çıta Profili
Birleşim Detayları
Pencere Renk Paleti
Sedir
Altın Meşe
Budaklı Meşe
Maun
Gri
Antrasit
Antik Ceviz
Füme
Kestane
Fındık
Gümüş Gri
Siyah
Smooth Antrasit
| Kasa ve Kanat Profil Genişliği / mm | : | 75 |
|---|---|---|
| Conta Sayısı / adet | : | 3 |
| Odacık Sayısı / adet | : | 6 |
| Ses Yalıtımı / desibel | : | 43 |
| Hava Geçirgenlik Sınıfı | : | 4 |
| Su Sızdırmazlık Sınıfı | : | 9A |
| Profil Isı Yalıtımı / (W / M2 0K) | : | 1,02 |
| Pencere Isı Yalıtımı / (W / M2 0K) | : | 0,94 |
| Rüzgar Yüküne Dayanım Sınıfı | : | C3 |
| Profil Sınıfı / TS -5358 / EN 12608 | : | Selenit Selective Strong A Sınıfı Selenit Strong B Sınıfı |
| Cam Kalınlıkları / mm | : | 20,24,32,42,44 |
Sistem
- Selenit Serisinin tüm sistem profilleri 75 mm genişliğe sahiptir.
- Ana profillere entegre detay profiller ile her türlü mimari ve teknik detayları çözebilecek özelliklerdedir.
- Cam çıta profilleri 44 mm'ye kadar 3'lü cam kullanımına uygundur.
- Su tahliyesini kolaylaştıran tasarım sayesinde yüksek su sızdırmazlığı sağlanır.
- Menteşe destek sacı uygulanabilirliği sayesinde kanat sarkmaları engellenir.
- Oval çıta yapısıyla estetik bütünlük sağlanır.
- Özel tasarım 3 conta sistemi kesinlikle hava ve su sızdırmaz. 3 contalı sistem, Selenit Strong ve "A" sınıfı et kalınlığına sahip Selenit Selective Strong serilerinde mevcuttur.
- Tekli, çiftli ve üçlü cam çıtaları ile farklı dekoratif çözümler sunar.
- 6 odacıklı kasa ve kanat profilleri ile mükemmel ısı yalıtımı sağlar.
- Sistem 13 aks ispanyolet kullanımına uygundur.
- Sistemin sahip olduğu mukavemet değerleri yüksek katlı yapılarda kullanılabilmesini sağlar.
- 22 farklı renk ve dokuya sahip laminasyon renk alternatifi, iç ve dış ortama uygun seçenekler sunar.
Rüzgar Yükü Dayanımı
- Selenit tasarlanırken, pvc profillerin güç kriteri, sistem içerisinde kullanılacak destek saclarının atalet momentleri ve buna bağlı "rüzgar yükü dayanımı" en yüksek oranlarda gözetilmiştir.
- Yüksek katlı yapılar ve geniş açıklıklarının kapatılması için güvenle kullanılan yeni çözümler sunar.
- Sistemin sahip olduğu griyaj profilleri, mimari tasarım açısından geniş açıklıkların kapatılması istendiğinde ideal mukavemet değerlerini rahatlıkla sağlar.
- Selenit Sisteminin sahip olduğu yüksek dayanım değerleri 3.000 Pa (245 km/h) güvenlik testinden başarıyla geçmiş ve rüzgar yükü sınıflandırmasında C3 sınıfına girmiştir.
Su ve Hava Sızdırmazlığı
- Hava ve su geçirgenliğinin en düşük seviyelerde tutulması için Selenit Serisi 3 conta sistemli olarak tasarlanmıştır. 3 contalı sistem, Selenit Strong ve "A" sınıfı et kalınlığına sahip Selenit Selective Strong serileri için geçerlidir.
- Enerji korunumu için gereken dış ortamdan iç ortama hava geçişinin engellenmesi, standart iç ve dış contaya ilaveten orta conta ile güçlendirilmiştir.
- Profiller; sisteme sızabilecek yağmur sularını profil üzerinde eğimler ve tahliye kanalları oluşturularak dış ortama tahliye edebilecek şekilde tasarlanmıştır.
- 600 Pa (110 km/h) rüzgar yükü altında ve dakikada 4 litre yağmur suyu ile yapılan testlerde iç ortama su sızdırmamış ve kalitesini kanıtlamıştır.
Isı Yalıtımı
- TS EN ISO 10077-2 standardına uygun olarak, 1,23 m x1,43 m ölçülerinde ve Ug: 0,6 W/m2 °K camla yapılan test sonucuna göre Selenit Sistemi Uf:1,02 W/m2 °K -Uw: 0,94 W/m2 °K değerlerine ulaşmıştır.
- Selenit Serisinin ana profilleri 6 odacıklıdır ve odacıkları geniştir. Böylece ısı iletim katsayısı değeri en düşük seviyelere çekilmiştir.
- Yalıtım performansı, Selenit Strong ve Selenit Selective Strong serilerinde 3. orta conta ile bir pvc pencere sisteminde olabilecek en iyi seviyeye taşınmıştır.
- Selenit Serisinin profil tasarımları; ısı iletim katsayısı değerleri en düşük seviyelerde olacak şekilde yapılmıştır.
Ses Yalıtımı
- Selenit pencere sistemleri ile 43 dB'e kadar ses yalıtımı sağlamak mümkündür.
- Selenit Serisi çok yüksek ses seviyelerinin olduğu hava alanı, tren yolları vb. ortamlarda dahi normal ses düzeylerini sağlar.
- Sistem ile birlikte kullanılacak akustik özellikli camlarla 43 dB gibi yüksek ses yalıtım seviyelerine ulaşmak mümkündür.





